
Главный плюс – десятки типовых проектов, каждый можно изменить, причем бесплатно. Мы учтём состав семьи, предпочтения в планировке, тонкости участка и рельефа, скорректируем комплектацию. Согласования займут пару дней, а строим мы быстро, преимущества наших технологий неоспоримы:
Плюсы материалов – прямая экономия на коммунальных платежах. Энергосбережение (без расходов на дополнительную теплоизоляцию) выше, чем у каменных домов. Управляемые зоны отопления регулируют экономию самой затратной части – отопления, а собственная скважина исключит оплату воды.
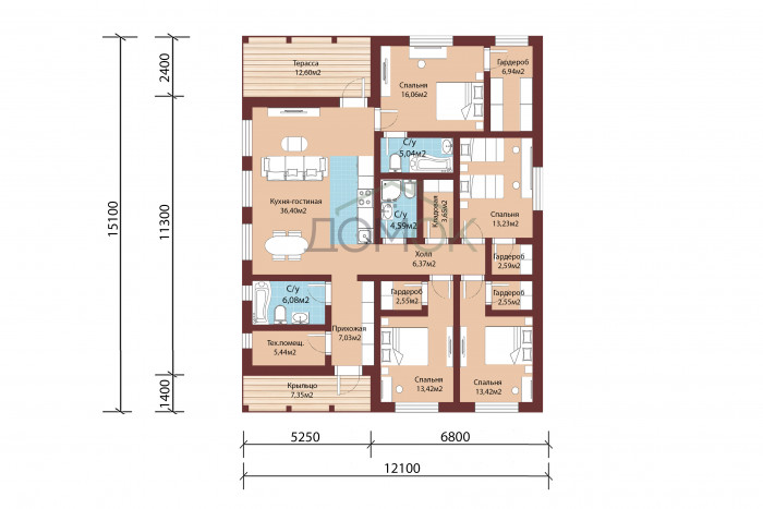
Мы предлагаем не "этап котлована", а собственный дом и каким он будет – решите вы.
Мы оценим участок и рекомендуем тип фундамента под выбранный проект. Вы внесете изменения планировки и одобрите комплектацию. После заключения договора предоплаты не потребуется, при необходимости поможем оформить кредит. Дальше вам останется отслеживать ход строительства, внося допустимые корректировки, чтобы новоселье вышло на славу. А после того, как обживётесь, мы построим для вас баню гараж или красивую веранду. Жизнь в частном доме к этому располагает, судя по отзывам наших заказчиков.
| ЗИМА | ТЕПЛЫЙ КОНТУР | КРУГЛОГОДИЧНАЯ | ПРЕМИУМ | |
| ФУНДАМЕНТ | ||||
| ТИП | Свайно-винтовой Ø 108, 2.5 м | Свайно-винтовой Ø 108, 2.5 м | Свайно-винтовой Ø 108, 2.5 м | Ж/Б сваи 150х150 мм и длинной 3000 мм с пластиной |
| ВОДООТЛИВ | нет | полимерный в цвет кровли | полимерный в цвет кровли | полимерный в цвет кровли |
| ОТДЕЛКА ЦОКОЛЯ | нет | нет | нет | Фасадные панели "Ю-ПЛАСТ" |
| КОНСТРУКТИВНАЯ ЧАСТЬ | ||||
| ОБВЯЗКА | металлический ростверк 100х100х4 мм | металлический ростверк 100х100х4 мм | металлический ростверк 100х100х4 мм | металлический ростверк 100х100х4 мм |
| ЧЕРНОВОЙ ПОЛ | ОСП 9 мм | ОСП 9 мм | ОСП 9 мм | ОСП 9 мм |
| СЕТКА ОТ МЫШЕЙ | нет | нет | нет | да |
| ЛАГИ ПОЛА 1-го ЭТАЖА | доска калиброванная камерной сушки 38х147 мм (+/-2 мм) шагом до 600 мм | доска калиброванная камерной сушки 38х147 мм (+/-2 мм) шагом до 600 мм | доска калиброванная камерной сушки 38х147 мм (+/-2 мм) шагом до 600 мм | доска калиброванная камерной сушки 38х197 мм (+/-2 мм) + брусок 48х40 мм (+/-2 мм) шагом до 400 мм для контр-перекрестного утепления |
| НЕСУЩИЙ КАРКАС СТЕН | камерной сушки 38х147 мм (+/-2 мм) | доска калиброванная камерной сушки 38х147 мм (+/-2 мм) | доска калиброванная камерной сушки 38х147 мм (+/-2 мм) | доска калиброванная камерной сушки 38х147 мм (+/-2 мм) |
| КАРКАС ПЕРЕГОРОДОК | доска калиброванная камерной сушки 36х96 мм (+/-2 мм) | доска калиброванная камерной сушки 36х96 мм (+/-2 мм) | доска калиброванная камерной сушки 36х96 мм (+/-2 мм) | доска калиброванная камерной сушки 36х96 мм (+/-2 мм) |
| П/М ДЛЯ КОНТР-ПЕРЕКРЕСТНОГО УТЕПЛЕНИЯ НАРУЖНЫХ СТЕН | нет | брусок 45х40 мм (+/- 2 мм) | брусок 45х40 мм (+/- 2 мм) | брусок 45х40 мм (+/- 2 мм) |
| ВЕНТИЛЯЦИЯ ФАСАДА | брусок 45х40 мм (+/- 2 мм) шагом до 600 мм | брусок 45х40 мм (+/- 2 мм) шагом до 600 мм | брусок 45х40 мм (+/- 2 мм) шагом до 600 мм | брусок 45х40 мм (+/- 2 мм) шагом до 600 мм |
| БАЛКИ МЕЖЭТАЖНОГО ПЕРЕКРЫТИЯ 1-го ЭТАЖА (потолок) | доска калиброванная камерной сушки 38х147 мм (+/-2 мм) шагом до 600 мм | доска калиброванная камерной сушки 38х147 мм (+/-2 мм) шагом до 600 мм | доска калиброванная камерной сушки 38х147 мм (+/-2 мм) шагом до 600 мм | доска калиброванная камерной сушки 38х197 мм (+/-2 мм) шагом до 400 мм |
| БАЛКИ МЕЖЭТАЖНОГО ПЕРЕКРЫТИЯ 2-го ЭТАЖА (потолок) | доска калиброванная камерной сушки 38х147 мм (+/-2 мм) шагом до 600 мм | доска калиброванная камерной сушки 38х147 мм (+/-2 мм) шагом до 600 мм | доска калиброванная камерной сушки 38х147 мм (+/-2 мм) шагом до 600 мм | доска калиброванная камерной сушки 38х147 мм (+/-2 мм) шагом до 600 мм |
| СТРОПИЛЬНАЯ СИСТЕМА | доска калиброванная камерной сушки 38х147 мм (+/-2 мм) | доска калиброванная камерной сушки 38х147 мм (+/-2 мм) | доска калиброванная камерной сушки 38х147 мм (+/-2 мм) | доска калиброванная камерной сушки 38х147 мм (+/-2 мм) |
| ВЕНТИЛИРУЕМЫЙ ЗАЗОР КРОВЛИ | брусок 45х40 мм (+/- 2 мм) | брусок 45х40 мм (+/- 2 мм) | брусок 45х40 мм (+/- 2 мм) | брусок 45х40 мм (+/- 2 мм) |
| ОБРЕШЕТКА СТРОПИЛЬНОЙ ЧАСТИ | доска 25х100 мм (+/-2 мм) | доска 25х100 мм (+/-2 мм) | доска 25х100 мм (+/-2 мм) | доска 25х100 мм (+/-2 мм) |
| ОГНЕБИОЗАЩИТА | лаги пола, подкладочная доска | лаги пола, подкладочная доска | лаги пола, подкладочная доска | лаги пола, подкладочная доска |
| ВЫСОТА ПОТОЛКОВ 1-й ЭТАЖ | 2.6 м | 2.6 м | 2.6 м | 2.6 м |
| ВЫСОТА ПОТОЛКОВ 2-й ЭТАЖ | 2.5 м | 2.5 м | 2.5 м | 2.5 м |
| УТЕПЛЕНИЕ | ||||
| ПОЛ 1-го ЭТАЖА | 150 мм Кнауф 037 | 200 мм Кнауф 037 | 200 мм Кнауф 037 | 250 мм Кнауф 037 |
| НАРУЖНЫЕ СТЕНЫ 1-го И 2-го ЭТАЖАН | 150 мм Кнауф 037 | 200 мм Кнауф 037 | 200 мм Кнауф 037 | 200 мм Кнауф 034 (плита) |
| ПЕРЕГОРОДКИ (ВНУТРЕННИЕ СТЕНЫ) | не утеплены | 100 мм Кнауф 037 | 100 мм Кнауф 037 | 100 мм Кнауф 037 |
| ПОТОЛОК 1-го ЭТАЖА | 50 мм Кнауф 037 | 100 мм Кнауф 037 | 100 мм Кнауф 037 | 200 мм Кнауф 037 |
| ПОТОЛОК 2-го ЭТАЖА И НАКЛОННЫЕ СТЕНЫ | 150 мм Кнауф 037 | 200 мм Кнауф 037 | 200 мм Кнауф 037 | 200 мм Кнауф 037 |
| ПАРОИЗОЛЯЦИЯ | есть (монтируется в нахлест) | есть (монтируется в нахлест) | есть (монтируется в нахлест) | Есть, с проклейкой швов пароизоляции скотчем Delta или Knauf NORD |
| ГИДРОВЕТРОЗАЩИТА | есть (монтируется в нахлест) | есть (монтируется в нахлест) | есть (монтируется в нахлест) | есть (монтируется в нахлест) |
| СУПЕРДИФФУЗИОННАЯ МЕМБРАНА (ПОД КРОВЛЕЙ) | есть | есть | есть | есть |
| ОТДЕЛКА | ||||
| НАПОЛЬНОЕ ПОКРЫТИЕ 1-го И 2-го ЭТАЖА | ОСП 22 мм | обрешетка 20х100 шагом до 300 мм | ОСП 22 мм | ОСП 22 мм |
| ПОТОЛОК 1-го И 2-го ЭТАЖА + НАКЛОННЫЕ ПАНЕЛИ | вагонка | повторитель п/м 17х40 мм | вагонка | вагонка (с/у гипсокартон влагостойкий) |
| ВНУТРЕННЯЯ ОТДЕЛКА СТЕН И ПЕРЕГОРОДОК | вагонка | нет | вагонка | вагонка (с/у гипсокартон влагостойкий) |
| ПОКРЫТИЕ ПОЛА ОТКРЫТЫХ ПЛОЩАДЕЙ | калиброванный профиль 35х145 мм | калиброванный профиль 35х145 мм | калиброванный профиль 35х145 мм | калиброванный профиль 35х145 мм |
| НАРУЖНАЯ ОТДЕЛКА | сайдинг Docke стандарт 8 цветов на выбор по ОСП 9 мм с металлическими углами и наличниками | сайдинг Docke стандарт 8 цветов на выбор по ОСП 9 мм с металлическими углами и наличниками | сайдинг Docke стандарт 8 цветов на выбор по ОСП 9 мм с металлическими углами и наличниками | имитация бруса покрашенная в заводских условиях (без ОСП) или сайдинг Docke Lux под брус по ОСП 9 мм с металлическими углами и наличниками |
| ДВЕРИ | входная металлическая стандарт / внутренние филенчатые | входная металлическая стандарт | входная металлическая стандарт / внутренние филенчатые | входная металлическая с Терморазрывом |
| УГЛОВЫЕ И ПОТОЛОЧНЫЕ ПЛИНТУСА | есть | есть | есть | есть |
| ОКНА | ||||
| ТИП | металлопластиковые Рехау, с проклейкой пароизоляционной лентой внутри | металлопластиковые Рехау, с проклейкой пароизоляционной лентой внутри | металлопластиковые Рехау, с проклейкой пароизоляционной лентой внутри | металлопластиковые Рехау, с проклейкой пароизоляционной лентой внутри |
| ПРИНЦИП ОТКРЫВАНИЯ | поворотные | поворотные | поворотные | поворотно-откидные |
| ПРОФИЛЬ | однокамерные 60 Rehau | двухкамерный 60 Rehau | двухкамерный 60 Rehau | двухкамерный 70 Rehau |
| ВОДООТЛИВ | есть | есть | есть | есть |
| ФУРНИТУРА | стандарт | стандарт | стандарт | стандарт |
| КРОВЛЯ | ||||
| МАТЕРИАЛ ПОКРЫТИЯ | металлочерепица 0.5 мм | металлочерепица 0.5 мм | металлочерепица 0.5 мм | металлочерепица 0.5 мм |
| ВОДОСТОЧНАЯ СИСТЕМА | нет | нет | пластиковая Docke Lux | пластиковая Docke Lux |
| СИСТЕМА СНЕГОЗАДЕРЖАНИЯ | нет | нет | нет | трубчатая |
| ПОДШИВКА КАРНИЗОВ | сайдинг белого цвета | сайдинг белого цвета | сайдинг белого цвета | частично-перфорированные софиты белого цвета |
| ВЕНТИЛЯЦИЯ | естественная | кухни и с/у ( с выходом грибков на кровле) | кухни и с/у ( с выходом грибков на кровле) | кухни и с/у ( с выходом грибков на кровле) |
| ВХОДНАЯ ГРУППА ТЕРРАСЫ И КРЫЛЬЦА | стандарт | стандарт | стандарт | премиум |
| ЛЕСТНИЦА | из строганного п/м | нет | из клееного п/м | из клееного п/м |








