Комплектация | Зима |
Количество санузлов | Два |
Тип | Полутораэтажные |
Количество комнат | 5 |
Площадь дома | 135.2 кв. м. |
Фундамент | Свайно-винтовой Ø108 L2500 мм. |
Обвязка фундамента | Замкнутая из металлической трубы 100х100х4 мм с применением подкладочной доски камерной сушки 38х147 мм (+/-2 мм) по гидроизоляции (рубероид). |
Полы 1 этажа | Балки − т-профиль 70х168 мм (+/- 2 мм) (калиброванный, камерной сушки) шагом до 600 мм, обработаны огнебиозащитой. Черновой пол - ОСП 9 мм. Утепление - экологически чистая минеральная вата Кнауф 037 150 мм с использованием ветро-гидроизоляции. Настил пола – ОСП 22 мм по пароизоляции. |
Стены 1 этажа | Каркас наружных стен - п/м 38х147 мм (+/- 2 мм) (калиброванный, камерной сушки). Изнутри стены обшиваются вагонкой класса Б по пароизоляции, далее устанавливается утепление, ветро-гидрозащитная мембрана, вентилируемый фасад п/м 45х40 мм (+/-2 мм) шагом до 600 мм, ОСП 9 мм, в качестве завершающей отделки сайдинг Docke D45DL с металлическими углами и наличниками. Утепление - экологически чистая минеральная вата Кнауф 037 150 мм. Высота помещения 1-го этажа 2,6 м. |
Перегородки 1 этажа | Каркас - п/м 38х98 мм (+/- 2 мм) (калиброванный, камерной сушки), с двух сторон обшит вагонкой класса Б по гидроветрозащите Терраспан или аналоги, в зоне с/у вместо крафт-бумаги применяется пароизоляция.. Не утеплены. Высота помещения 1-го этажа 2,6 м. |
Перекрытия 1 этажа | Балки перекрытия - п/м 38х147 мм (+/- 2 мм) (калиброванный, камерной сушки) шагом до 600 мм, опираются на несущие стены и балку. Потолок подшивается вагонкой класса Б по пароизоляции. Утепление - экологически чистая минеральная вата Кнауф 037 50 мм. |
Полы 2 этажа | Настил пола − ОСП 22 мм по гидроветрозащите Терраспан или аналоги. |
Фронтоны, боковые стенки мансарды | Каркас фронтонов − п/м 38х147 мм (+/- 2 мм) (калиброванный, камерной сушки). Каркас боковых стенок − п/м 38х147 мм (+/- 2 мм) (калиброванный, камерной сушки). Изнутри стены обшиваются вагонкой класса Б по пароизоляции, далее устанавливается утепление, ветро-гидрозащитная мембрана, вентилируемый фасад п/м 45х40 мм (+/-2 мм) шагом до 600 мм, ОСП 9 мм, в качестве завершающей отделки сайдинг Docke D45DL с металлическими углами и наличниками. Утепление - экологически чистая минеральная вата Кнауф 037 150 мм. Высота помещения мансарды 2,5 м. |
Перегородки мансарды | Каркас − п/м 38х98 мм (+/- 2 мм) (калиброванный, камерной сушки), с двух сторон обшит вагонкой класса Б по гидроветрозащите Терраспан или аналоги, в зоне с/у вместо крафт-бумаги применяется пароизоляция. Не утеплены. |
Перекрытия мансарды | Потолок подшивается вагонкой класса Б по ригелям из п/м 20х150 мм (камерной сушки). Утепление - экологически чистая минеральная вата Кнауф 037 150 мм. |
Стропильная часть и кровля | Стропильная часть - п/м 38х147 мм (+/- 2 мм) (калиброванный, камерной сушки) с повторителем из бруска 45х40 мм (+/- 2 мм) по диффузионной мембране. Обрешетка разреженная из п/м 20х100 мм. Кровля - металлочерепица коричневая 0.5 мм. Карнизы подшиты сайдингом цвет белый. |
Двери | Входная дверь металлическая, внутренние деревянные филенчатые. Дверь на террасу - однокамерная из пвх (если предусмотрена проектом). |
Окна | Стеклопакет пластиковый однокамерный профиль 70 Rehau, с проклейкой пароизоляционной лентой внутри (без подоконников и москитных сеток), с установкой отлива (цвет белый). |
Лестница внутренняя | Деревянная клееная, согласно проекту. Ограждение согласно проекту. |
Терраса, крыльцо (если предусмотрена проектом) | Столбы крыльца - п/м строганный. Настил пола - п/м строганный. Потолок подшивается вагонкой класса Б. Кровля - металлочерепица 0.5 мм. Ограждение - п/м строганный. |
Сборка, доставка проживание бригады | Данные услуги входят в стоимость данной комплектации. |
Примечание | Фирма оставляет за собой право вносить в проекты необходимые конструктивные изменения, направленные на совершенствование технологии производства и улучшение эксплуатационных качеств изделий. Все внутренние размеры, а также высота потолков, даны без учета напольного и стенового покрытия, т.е размеры даны по конструктивной части дома. |

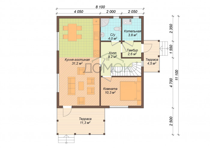
«Тайга-2» 8х8.5 — реализация вашей мечты о жизни за пределами города, окунувшегося в смог. Двухэтажный проект каркасного дома содержит современные конструктивные решения. Второй этаж — удобное и оригинальное помещение для творческих людей и молодежи. Компактный и функциональный дом способен разместить небольшую семью из 3-4 человек с комфортом. Общая площадь — 135.2 м². Пригодно как для летнего, так и для круглогодичного проживания.
Многие дачники, заказывая каркасный дом под ключ, выбирают именно этот проект. Так ка в нем есть все для комфортной жизни:
Первый этаж:
Второй этаж:
Технического помещения нет.
В зависимости от того, хотите ли вы купить летние каркасные дома под ключ недорого или выбираете зимний вариант, формируется стоимость жилья. Летняя комплектация наиболее дешевая за счет облегченного фундамента, отсутствия вентиляции кухни, отделки террасы и других мелочей. Идеальный вариант для дачи.
Зимняя и круглогодичная комплектация более продвинутая, в ней лучше отделка, утепление, двухкамерный стеклопакет. В комнатах будет комфортно даже в морозы.
Узнать цены на каркасные дома под ключ и другие проекты можно у наших менеджеров. Позвоните нам, оставьте сообщение в чате или закажите обратный звонок, чтобы задать вопросы. Мы всегда рады помочь!
Водоподведение из скважины до 5 метров. Установка скважинного насоса Termica 3SQ 3 3SQ 3/65 с комплектом подключения на глубину погружения до 25 метров. Установка комплекта скважинного адаптера, прокладка наружного водопровода длиной до 5 метров и глубиной 1 метр от скважины до точки ввода в дом, прокладка электрического кабеля от скважины до ввода в дом 5 метров, монтаж комплекта автоматики давления и гидроаккумулятор на 50 литров.
Электромонтажные работы наружного монтажа. Дом от 130 до 200 квадратных метров(без подключения внешней сети, без заземления). На одну группу (автомат номиналом 16А) устанавливается до 5 розеток общей нагрузкой не более 3500 Вт. Исключением являются такие помещения как кухня-гостиная, тех. помещение (котельная) на одну группу (автомат номиналом 16А) устанавливается до 3 розеток общей нагрузкой не более 3500 Вт. Кабель ВВГ НГ розеточная сеть, 3х2.5 сеть освещения 3х1.5. Кабель канал белый / конечная установка Schneider Blanco цвет белый (или аналоги) /автоматика EKF (или аналоги) / Щит 24 модуля. Наполнение щита: 1)Вводной автомат 32А 1 шт; 2)УЗО 40А 30 мл 1 шт; 3)Диф автомат 16А 30 мл 1 шт (стиральная машинка); 4)Розеточная сеть 16А (Кухня 1 шт / Гостиная 1 шт / Котельная 1 шт) Розеточная сеть 7 шт; 5)Сеть освещение 10А 1 шт. Минимальное количество точек 55 шт. Щит 24 модуля.
Станция Руслос БИО 5 или станция Итал БИО 5 или Итал АНТЕЙ 5 Стандартный Монтаж станции 5, Прокладка подводящего трубопровода Ø 110 до 5 метров, Монтаж электрокабеля в гофротрубе до 10 метров, Насос дренажный для принудительного выброса c изменением конструкции станции, Ввод в дом узла канализации 110 мм с пробивкой отверстия в полу, соединение с септиком.
Разводка труб водоснабжения на 1 и 2 этаж (PPR армированные d20 мм) на холодную и горячую воду. Разводка труб канализации d50 и 110 мм согласно схемы санузел 1 этаж (ванна-душ, унитаз, раковина, стиральная машина, кухня), 2 этаж (унитаз, раковина) стояки канализации d50 и 110 мм. Зимний слив водоснабжения из системы дома. Водонагреватель Ariston на 80 литров.
| ЗИМА | ТЕПЛЫЙ КОНТУР | КРУГЛОГОДИЧНАЯ | ПРЕМИУМ | |
|---|---|---|---|---|
| ФУНДАМЕНТ | ||||
| ТИП | Свайно-винтовой Ø 108, 2.5 м | Свайно-винтовой Ø 108, 2.5 м | Свайно-винтовой Ø 108, 2.5 м | Ж/Б сваи 150х150 мм и длинной 3000 мм с пластиной |
| ВОДООТЛИВ | нет | полимерный в цвет кровли | полимерный в цвет кровли | полимерный в цвет кровли |
| ОТДЕЛКА ЦОКОЛЯ | нет | нет | нет | Фасадные панели "Ю-ПЛАСТ" |
| КОНСТРУКТИВНАЯ ЧАСТЬ | ||||
| ОБВЯЗКА | металлический ростверк 100х100х4 мм | металлический ростверк 100х100х4 мм | металлический ростверк 100х100х4 мм | металлический ростверк 100х100х4 мм |
| ЧЕРНОВОЙ ПОЛ | ОСП 9 мм | ОСП 9 мм | ОСП 9 мм | ОСП 9 мм |
| СЕТКА ОТ МЫШЕЙ | нет | нет | нет | да |
| ЛАГИ ПОЛА 1-го ЭТАЖА | доска калиброванная камерной сушки 38х147 мм (+/-2 мм) шагом до 600 мм | доска калиброванная камерной сушки 38х147 мм (+/-2 мм) шагом до 600 мм | доска калиброванная камерной сушки 38х147 мм (+/-2 мм) шагом до 600 мм | доска калиброванная камерной сушки 38х197 мм (+/-2 мм) + брусок 48х40 мм (+/-2 мм) шагом до 400 мм для контр-перекрестного утепления |
| НЕСУЩИЙ КАРКАС СТЕН | доска калиброванная камерной сушки 38х147 мм (+/-2 мм) | доска калиброванная камерной сушки 38х147 мм (+/-2 мм) | доска калиброванная камерной сушки 38х147 мм (+/-2 мм) | доска калиброванная камерной сушки 38х147 мм (+/-2 мм) |
| КАРКАС ПЕРЕГОРОДОК | доска калиброванная камерной сушки 36х96 мм (+/-2 мм) | доска калиброванная камерной сушки 36х96 мм (+/-2 мм) | доска калиброванная камерной сушки 36х96 мм (+/-2 мм) | доска калиброванная камерной сушки 36х96 мм (+/-2 мм) |
| П/М ДЛЯ КОНТР-ПЕРЕКРЕСТНОГО УТЕПЛЕНИЯ НАРУЖНЫХ СТЕН | нет | брусок 45х40 мм (+/- 2 мм) | брусок 45х40 мм (+/- 2 мм) | брусок 45х40 мм (+/- 2 мм) |
| ВЕНТИЛЯЦИЯ ФАСАДА | брусок 45х40 мм (+/- 2 мм) шагом до 600 мм | брусок 45х40 мм (+/- 2 мм) шагом до 600 мм | брусок 45х40 мм (+/- 2 мм) шагом до 600 мм | брусок 45х40 мм (+/- 2 мм) шагом до 600 мм |
| БАЛКИ МЕЖЭТАЖНОГО ПЕРЕКРЫТИЯ | доска калиброванная камерной сушки 38х147 мм (+/-2 мм) шагом до 600 мм | доска калиброванная камерной сушки 38х147 мм (+/-2 мм) шагом до 600 мм | доска калиброванная камерной сушки 38х147 мм (+/-2 мм) шагом до 600 мм | доска калиброванная камерной сушки 38х197 мм (+/-2 мм) шагом до 600 мм |
| СТРОПИЛЬНАЯ СИСТЕМА | доска калиброванная камерной сушки 38х147 мм (+/-2 мм) + ригель 38х147 мм (+/-2 мм) | доска калиброванная камерной сушки 38х147 мм (+/-2 мм) + ригель 38х147 мм (+/-2 мм) | доска калиброванная камерной сушки 38х147 мм (+/-2 мм) + ригель 38х147 мм (+/-2 мм) | доска калиброванная камерной сушки 38х147 мм (+/-2 мм) + ригель 38х147 мм (+/-2 мм) |
| ВЕНТИЛИРУЕМЫЙ ЗАЗОР КРОВЛИ | брусок 45х40 мм (+/- 2 мм) | брусок 45х40 мм (+/- 2 мм) | брусок 45х40 мм (+/- 2 мм) | брусок 45х40 мм (+/- 2 мм) |
| ОБРЕШЕТКА СТРОПИЛЬНОЙ ЧАСТИ | доска 25х100 мм (+/-2 мм) | доска 25х100 мм (+/-2 мм) | доска 25х100 мм (+/-2 мм) | доска 25х100 мм (+/-2 мм) |
| ОГНЕБИОЗАЩИТА | лаги пола, подкладочная доска | лаги пола, подкладочная доска | лаги пола, подкладочная доска | лаги пола, подкладочная доска |
| ВЫСОТА ПОТОЛКОВ 1-й ЭТАЖ | 2.6 м | 2.6 м | 2.6 м | 2.6 м |
| ВЫСОТА ПОТОЛКОВ 2-й ЭТАЖ | 2.5 м | 2.5 м | 2.5 м | 2.5 м |
| УТЕПЛЕНИЕ | ||||
| ПОЛ 1-го ЭТАЖА | 150 мм Кнауф 037 | 200 мм Кнауф 037 | 200 мм Кнауф 037 | 250 мм Кнауф 037 |
| НАРУЖНЫЕ СТЕНЫ 1-го и 2-го ЭТАЖА | 150 мм Кнауф 037 | 200 мм Кнауф 037 | 200 мм Кнауф 037 | 200 мм Кнауф 034 (плита) |
| ПЕРЕГОРОДКИ (ВНУТРЕННИЕ СТЕНЫ) | не утеплены | 100 мм Кнауф 037 | 100 мм Кнауф 037 | 100 мм Кнауф 037 |
| ПОТОЛОК 1-го ЭТАЖА | 50 мм Кнауф 037 | 100 мм Кнауф 037 | 100 мм Кнауф 037 | 200 мм Кнауф 037 |
| ПОТОЛОК 2-го ЭТАЖА | 150 мм Кнауф 037 | 200 мм Кнауф 037 | 200 мм Кнауф 037 | 200 мм Кнауф 037 |
| ПОТОЛОК 2-го ЭТАЖА НАКЛОННЫЕ СТЕНЫ | 150 мм Кнауф 037 | 200 мм Кнауф 037 | 200 мм Кнауф 037 | 200 мм Кнауф 037 |
| ПАРОИЗОЛЯЦИЯ | есть (монтируется в нахлест) | есть (монтируется в нахлест) | есть (монтируется в нахлест) | есть, с проклейкой швов пароизоляции скотчем Delta или Knauf NORD |
| ГИДРОВЕТРОЗАЩИТА | есть (монтируется в нахлест) | есть (монтируется в нахлест) | есть (монтируется в нахлест) | есть (монтируется в нахлест) |
| СУПЕРДИФФУЗИОННАЯ МЕМБРАНА (ПОД КРОВЛЕЙ) | есть | есть | есть | есть |
| ОТДЕЛКА | ||||
| НАПОЛЬНОЕ ПОКРЫТИЕ 1-го и 2-го ЭТАЖА | ОСП 22 мм | обрешетка 20х100 шагом до 300 мм | ОСП 22 мм | ОСП 22 мм |
| ПОТОЛОК 1-го и 2-го ЭТАЖА | вагонка | повторитель п/м 17х40 мм | вагонка | вагонка (с/у гипсокартон влагостойкий) |
| ВНУТРЕННЯЯ ОТДЕЛКА СТЕН И ПЕРЕГОРОДОК | вагонка | нет | вагонка | вагонка (с/у гипсокартон влагостойкий) |
| ПОКРЫТИЕ ПОЛА ОТКРЫТЫХ ПЛОЩАДЕЙ | калиброванный профиль 35х145 мм | калиброванный профиль 35х145 мм | калиброванный профиль 35х145 мм | калиброванный профиль 35х145 мм |
| НАРУЖНАЯ ОТДЕЛКА | сайдинг Docke стандарт 8 цветов на выбор по ОСП 9 мм с металлическими углами и наличниками | сайдинг Docke стандарт 8 цветов на выбор по ОСП 9 мм с металлическими углами и наличниками | сайдинг Docke стандарт 8 цветов на выбор по ОСП 9 мм с металлическими углами и наличниками | имитация бруса покрашенная в заводских условиях (без ОСП) или сайдинг Docke Lux под брус по ОСП 9 мм с металлическими углами и наличниками |
| ДВЕРИ | входная металлическая стандарт / внутренние филенчатые | входная металлическая стандарт | входная металлическая стандарт / внутренние филенчатые | входная металлическая с Терморазрывом |
| УГЛОВЫЕ И ПОТОЛОЧНЫЕ ПЛИНТУСА | есть | нет | есть | есть |
| ОКНА | ||||
| ТИП | металлопластиковые Рехау, с проклейкой пароизоляционной лентой внутри | металлопластиковые Рехау, с проклейкой пароизоляционной лентой внутри | металлопластиковые Рехау, с проклейкой пароизоляционной лентой внутри | металлопластиковые Рехау, с проклейкой пароизоляционной лентой внутри |
| ПРИНЦИП ОТКРЫВАНИЯ | поворотные | поворотные | поворотные | поворотно-откидные |
| ПРОФИЛЬ | однокамерный 70 Rehau | двухкамерный 70 Rehau | двухкамерный 70 Rehau | двухкамерный 70 Rehau |
| ВОДООТЛИВ | есть | есть | есть | есть |
| ФУРНИТУРА | стандарт | стандарт | стандарт | стандарт |
| КРОВЛЯ | ||||
| МАТЕРИАЛ ПОКРЫТИЯ | металлочерепица 0.5 мм | металлочерепица 0.5 мм | металлочерепица 0.5 мм | металлочерепица 0.5 мм |
| ВОДОСТОЧНАЯ СИСТЕМА | нет | нет | пластиковая Docke Lux | пластиковая Docke Lux |
| СИСТЕМА СНЕГОЗАДЕРЖАНИЯ | нет | нет | нет | трубчатая |
| ПОДШИВКА КАРНИЗОВ | вагонка | вагонка | вагонка | частично-перфорированные софиты белого цвета |
| ВЕНТИЛЯЦИЯ | естественная | кухни и с/у (с выходом грибков на кровле) | кухни и с/у (с выходом грибков на кровле) | кухни и с/у (с выходом грибков на кровле) |
| ВХОДНАЯ ГРУППА ТЕРРАСЫ И КРЫЛЬЦА | стандарт | стандарт | стандарт | премиум |
| ЛЕСТНИЦА | из строганного п/м | нет | из клееного п/м | из клееного п/м |